品牌資訊
現代簡約家居風格合理運用簡潔流暢的線條,將經典元素與現代審美巧妙融合,營造干凈純粹的生活理念,彰顯設計品味和態度。
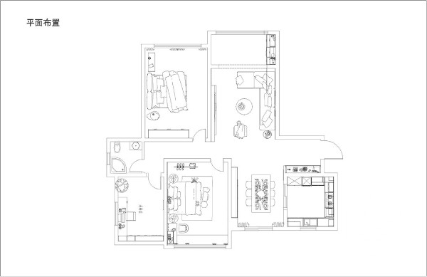
入戶

客廳

餐廳
主臥

兒童房

書房

廚房

陽臺

Color scheme 配色
將設計融入日常生活,在這個極其看重設計感的時代,柜貓家居不斷結合終端需求,賦予家居空間多樣的風格與特點,帶給用戶更好的家居體驗感。
與我交談
<