品牌資訊

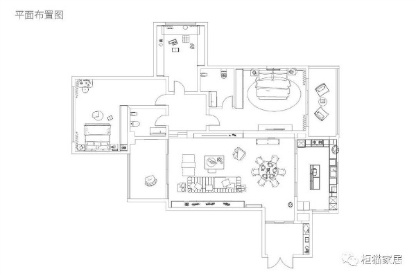
入戶柜設計充分利用空間,功能區劃分更加細致入微。
客餐廳一體化,極簡干練,凸顯整體層次感。
休憩區追求空間的釋放,規避因布局擁擠帶來的壓抑感。

Kitchen廚房
開放式廚房打破局限感,讓下廚成為一種樂事。

Color scheme 配色
▼

柜貓家居擅于在生活中尋找設計靈感,貼近生活,讓設計不拘泥于形式,為更多家庭帶來更好的產品和更舒適的家居體驗感。
與我交談
<